首頁 > 房屋出售 > 誠昱/西港現代全新未住透天厝
第一房屋仲介 - 誠昱/西港現代全新未住透天厝

誠昱/西港現代全新未住透天厝

透天/別墅      1320萬

系統編號

物件區域
723台南市西港區

物件地址
大竹林

地坪
28.5 坪

總建坪
48.24 坪

室內坪數
48.24 坪

主建物坪
43.62 坪

附屬建物坪數
4.62 坪

車位
車庫    

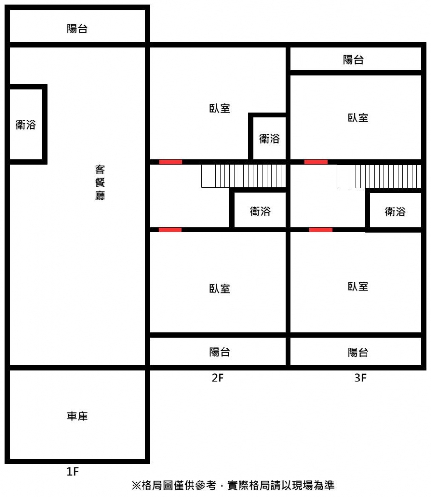
總樓層
3 樓

位於樓層
1~3 樓

格局
4房2廳4衛4陽台

房屋座向
座西北朝東南

建物結構
鋼筋混凝土(RC)

建築完工
2025年 屋齡約1年

臨路寬度
約6 米路

特色說明
(1).環境超然.湛藍天空.交通四通八達.微風吹拂
(2).晨昏灑灑水.大地坪.室內視野佳.與大自然為伍
(3).鄉村農地.老狗.老地.老友.天南地北好住處
(4).配備完全.不積水.優雅之地.採買方便
(5)W寬約4.3米*深度21米.臨路6米

※以上資訊如有記載錯誤,一律依謄本登記簿為準

 - 誠昱/西港現代全新未住透天厝
 - 誠昱/西港現代全新未住透天厝
 - 誠昱/西港現代全新未住透天厝
 - 誠昱/西港現代全新未住透天厝
 - 誠昱/西港現代全新未住透天厝
 - 誠昱/西港現代全新未住透天厝
 - 誠昱/西港現代全新未住透天厝
 - 誠昱/西港現代全新未住透天厝
 - 誠昱/西港現代全新未住透天厝
 - 誠昱/西港現代全新未住透天厝
 - 誠昱/西港現代全新未住透天厝
 - 誠昱/西港現代全新未住透天厝
 - 誠昱/西港現代全新未住透天厝
 - 誠昱/西港現代全新未住透天厝
推薦物件...

誠昱/新生國小芳鄰美建地

誠昱/新生國小芳鄰美建地
555 萬

誠昱/正東區路面便宜店面.

誠昱/正東區路面便宜店面.
1250 萬

誠昱/大橋國中收租金店面

誠昱/大橋國中收租金店面
3380 萬

誠昱/嘉藥大學8套房高投.

誠昱/嘉藥大學8套房高投.
1281 萬

誠昱/新化高中整新溫馨三.

誠昱/新化高中整新溫馨三.
958 萬

誠昱/歸南國小溫馨2+1.

誠昱/歸南國小溫馨2+1.
668 萬

誠昱/楠西新鹿兒農地(2.

誠昱/楠西新鹿兒農地(2.
784 萬

誠昱/賣持分農地有緣價格.

誠昱/賣持分農地有緣價格.
598 萬


更多..
地圖
分享到臉書